建筑师:Behet Bondzio Lin Architekten
面积:94平方米
照片:赵宇晨摄影
制造商:Carl Hansen and Son、Catellani&Smith、Toto
景观设计:Behet Bondzio Lin Architekten


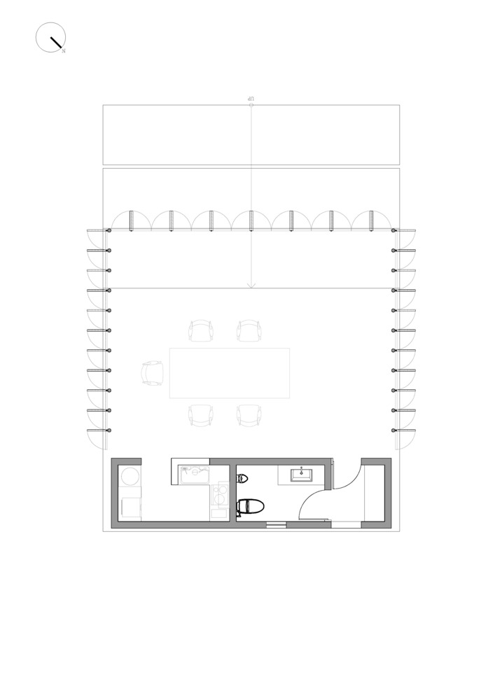
客户的主要要求是在水月山上建一个茶亭,不需要人工空调系统来实现空间的热舒适。但由于它位于这座山顶,这座建筑完全暴露在来自南方的阳光和来自东北部的强风下。


该设计使用了两个交错的、朝南的弯曲混凝土板,有助于控制气流,并将宜人的南风引入空间。两块弯曲的板和覆盖前平台的水平混凝土板之间的垂直错位允许太阳辐射进入空间,在寒冷的季节冲刷茶几表面。





位于北立面的三角形缅甸柚木格子阻挡了来自东北方向的强风。




同样由缅甸柚木制成的旋转门位于平面图的周边,可以更好地控制光线,并将气流直接引入主休息室。


展馆位于一个椭圆形水池中央,水池高出东面60厘米,西面30厘米。池塘上的水位变化允许自然的水流,并有助于提高空间的舒适度,增加在炎热季节流入空间的空气中的相对湿度。




扫二维码分享到微信